Gassiot Road, London, SW17
£1,950 PCM
Fees Info
2
1
1
Key Features:
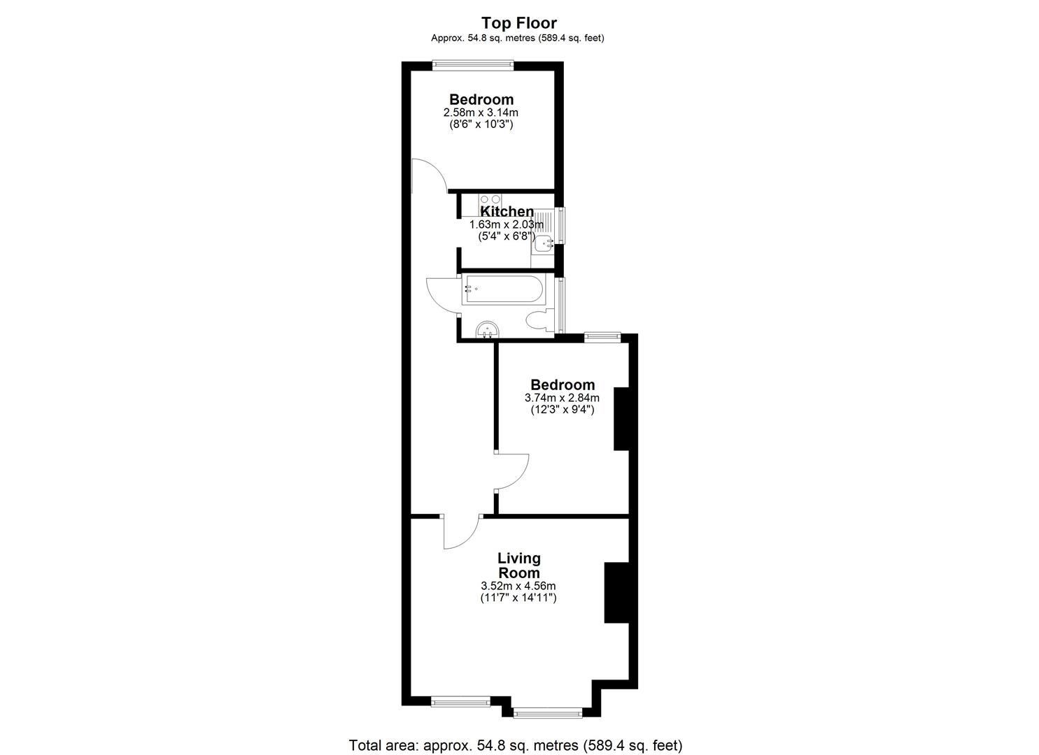
- 2 Bedrooms
- Newly Modernised Throughout
- Close to Tooting Broadway
- Large Lounge
- New fitted kitchen
- New bathroom with shower
- Gas Central Heating
- New Flooring & Decor
- First Floor
- Wandsworth Borough
Summary:
Newly modernised first floor 2 double bedroom flat. With a large lounge spanning the full width of the property, 2 good size bedrooms, newly fitted kitchen with integrated oven, hob and extractor, newly fitted bathroom with shower over the bath and a heated towel rail, new flooring throughout, new decor throughout and gas fired central heating. This is an excellent opportunity to rent a lovely flat within two minutes walk of Tooting High Street with shops, restaurants and Tooting Broadway Northern line tube. View early to avoid disappointment.
Full Details:
Viewing & Disclaimer:
Please contact us on 02086721066 if you wish to arrange a viewing appointment for this property, or require further information.
Mercer Taylor - SW17 endeavour to maintain accurate depictions of properties in Virtual Tours, Floor Plans and descriptions, however, these are intended only as a guide and purchasers must satisfy themselves by personal inspection.

